Teräsovien korjaussaranat
Teräsovien korjaussaranat. Helppo korjaussarana metallioville. Väliaikaiseen tai lopulliseen kiinnitykseen. Ei tarvitse rälläköidä/hitsata/paikkamaalata.
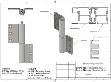
Teräsovien korjaussaranat malli 1
Uudenmallisiin tasapintaisiin metallioviin








Suora huullos ns modernin mallin metalliovi
Teräsovien korjaussaranat malli 2
Vanhanmallisiin metallioviin
Koho huullos ns vanhat metalliovimallit
Malli 1
Teräsovien korjaussarana. Helppo korjaussarana teräsoville. Väliaikaiseen kiinnitykseen tai lopulliseen. Ei tarvitse rälläköidä/hitsata/paikkamaalata.
Malli leveä (Suora huullos ns modernin mallin metalliovi) = Vasen ja oikeakätisille oville eri saranat.
140mm rasvanipallinen sarana.
Sisältää 1mm kampalevyn merialumiinista. Voidaan tasoittaa mahdollisia tasoeroja.
Saatavana raakana tai Ral-vakiovärisävyillä.
Muut RAL-Värisävyt lisähinnalla.
Ruuvit eivät sisälly hintaan. Reiät ovat suunniteltu, joko poraruuveille tai 6mm lukkopulteille.
Kysy lisää myynnistä!
Malli 2
Teräsovien korjaussarana. Helppo korjaussarana teräsoville. Väliaikaiseen kiinnitykseen tai lopulliseen. Ei tarvitse rälläköidä/hitsata/paikkamaalata.
Malli kapea (Koho huullos ns vanhat metalliovimallit) = Vasen ja oikeakätisille oville eri sarana
140mm rasvanipallinen sarana.
Sisältää 1mm kampalevyn merialumiinista. Voidaan tasoittaa mahdollisia tasoeroja.
Saatavana raakana tai Ral-vakiovärisävyillä
Muut RAL-Värisävyt lisähinnalla.
Ruuvit eivät sisälly hintaan. Reiät ovat suunniteltu, joko poraruuveille tai 6mm lukkopulteille.
Kysy lisää myynnistä!
Ota yhteyttä
Tietoa meistä
Wokker Oy
Y-tunnus: 2188950-7
Hepolamminkatu 36 A4
33720
TAMPERE
© 2024. All rights reserved.






